ПРОЕКТ ВЕНСЕН

5 3
ПРОЕКТ ВЕНСЕН фото 1 ПРОЕКТ ВЕНСЕН фото 2 ПРОЕКТ ВЕНСЕН фото 3 ПРОЕКТ ВЕНСЕН фото 4 ПРОЕКТ ВЕНСЕН фото 5 ПРОЕКТ ВЕНСЕН фото 6 ПРОЕКТ ВЕНСЕН фото 7
  • Дизайн интерьера и экстерьера в подарок с просмотром в vr очках;
  • Индивидуальное проектирование с учетом ваших предпочтений;
  • Северный лес.Собственное производство;
  • Лучшие цены на рынке. Гарантия 20 лет!

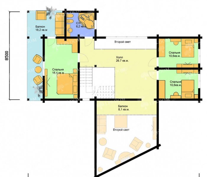
Поэтажные планировки

ПРОЕКТ ВЕНСЕН
Размер домаРазмер дома
16.5х16.3
Площадь домаОбщая площадь дома
329.2 кв.м

Интерьеры

Комплектациии и материалы

Выберите необходимую комплектацию
145х145
Итоговая цена: По запросу
Оставить заявку
Стены
Стены
Материал стен клееный брус камерной сушки диаметром 145х145 мм .
Кровля
Кровля

Толщина пирога кровли 250 мм

Утепление плитным утеплителем 200 мм

Покрытые кровли метало черепица, толщиной 0,45 мм.

Полы
Полы

Толщина перекрытий – 243 мм, утепление плитным утеплителем – 200 мм. В полах предусмотрено перекрестное утепление пола, исключающее появление мостиков холода и продуваний извне. В полах так же предусмотрен слой для инженерных коммуникаций, позволяющий не портить конструкцию половых лаг при проводке коммуникаций. Покрытие пола – смонтированный с дополнительным усилением плиты ОСП толщиной 18 мм, являющиеся основой под ламинат, паркет, половую или шпунтованную доску, а также любое чистовое покрытие пола.

Пол второго этажа Толщина перекрытий – 205 мм. В полах предусмотрен слой для инженерных коммуникаций, позволяющий не портить конструкцию половых лаг при проводке коммуникаций. Покрытие пола – усиленные плиты ОСП толщиной 18 мм, являющиеся основой под ламинат, паркет, половую или шпунтованную доску, а также любое чистовое покрытие пола.

Шаг балок на обоих этажах от 25 до 59 см зависит от размера комнат, определенный интервал делается для того, чтобы половые лаги не прогибались и не шатались при ходьбе. Расчет по нагрузкам производится по СНиПу .

Фундамент
Фундамент

Винтовые сваи. Толщина стенки сваи – 4 мм, толщина лопасти – 5 мм. Сваи бетонируются внутрь пескоцементной смесью М300. Наваривается металлический оголовок, по которому делается и крепится обвяз. Свая покрыта двухкомпонентным заводским защитным составом.

Электрика
Электрика

Все электромонтажные работы выполняются по проекту электроснабжения на основании сделанного для вас дизайн проекта с планом расстановки мебели. 

Электромонтажные работы электросетях 220/380 В и слаботочные сети (интернет, ТВ и видеонаблюдение). Монтаж силовых и слаботочных линий скрытым способом в металлорукаве. Более подробную информацию Вы можете получить у консультантов компании.

Дополнительно: 

  • Сборка и подключение электрощита 220/380 В и мультимедийного щита.
  • Установка розеток, выключателей и светильников.
  • Подключение дома к линиям электропередач.
  • Монтаж контура заземления.
  • Монтаж с подключением дополнительных групп для конверторного отопления.
Отопление
Отопление

По проекту, прокладка труб отопления прокладывается скрыто в утеплителе и открытым способом для радиаторов и водяных теплых полов. 

Более подробную информацию Вы можете получить у консультантов компании.

Дополнительно:

  • Установка с подключением коллекторного шкафа к системе отопления.
  • Монтаж водяных теплых полов по системе «сухой стяжки».
  • Опрессовка труб отопления.
  • Монтаж с подключением радиаторов
Водоснабжение и канализация
Водоснабжение и канализация

Работы по проводке водоснабжения и канализации выполняются по проекту. 

Все работы по водоснабжению и канализации выполняются по проекту. Более подробную информацию Вы можете получить у консультантов компании.

  • Прокладка труб водоснабжения скрыто в утеплителе и открытым способом для потребителей.
  • Установка с подключением коллекторного шкафа к системе водоснабжения.
  • Опрессовка труб водоснабжения.
  • Монтаж с подключением водорозеток.
  • Сборка и установка оборудования для системы водоснабжения.
  • Монтаж с подключением водонагревательного накопительного бака или проточного водонагревателя.
  • Монтаж закладных труб для канализации в перекрытии.
  • Монтаж системы канализации внутри дома с выводом для подключения к очистной станции.
  • Монтаж вентиляции для канализационной системы.


Деревянные дом с красной крышей
Ж/Б сваи в подарок!
Для этого нужно ответить на 2 простых вопроса!
28
Дни
00
Часы
00
Минуты
00
Секунды
Ответить на вопросы
Вопрос номер 1 из 2
Далеко ли участок от МКАД?
Следующий вопрос
Вопрос номер 2 из 2
Когда начнется строительство?
Закончить опрос
Спасибо за ответы
Оставьте свои данные для получения подарка и бесплатной консультации по строительству деревянных домов.
Деревянный дом с большими окнами