КАРКАСНЫЙ ДОМ ТАУРУС
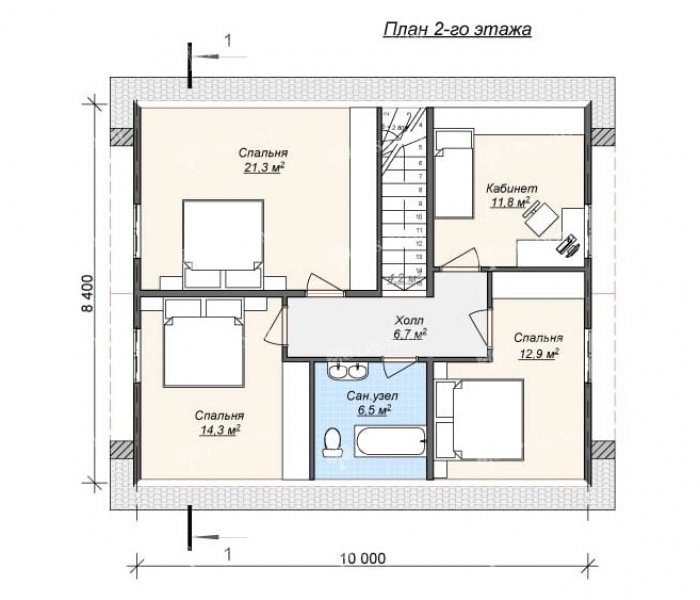
Поэтажные планировки
Комплектациии и материалы
- Высота стен первого этажа – 2,7 м, второго этажа – 2,5 м.
- Антисептирование деревянных элементов каркаса.
- Утепление наружных стен плитами – 300 мм и шумоизоляция. Толщина стен – 370 мм.
- Кровля. Утепление плитным утеплителем – 200 мм. Толщина пирога кровли – 250 мм.
- Покрытие кровли – металлочерепица.
- Утепление пола плитами – 200 мм. Толщина перекрытий – 243 мм.
- Покрытие пола ОСП – 18 мм (под ламинат, паркет).
- Отделка – имитация бруса класса А.
- Окна – пластиковые стеклопакеты.
- Контроль строительства – бесплатная услуга технадзора.
- Гарантия на каркас 20 лет!
- Возможна замена материалов и внесение изменений в проект
- Высота первого этажа – 2,7 м.
- Высота второго этажа – 2,5 м.
- Каркас возводится по уникальной технологии. Конструктив данного каркаса является последним инновационным достижением в каркасном домостроении. Толщина стен доходит до 370 мм (в зависимости от отделки). Утепление стен – 300 мм (шесть слоев плитного утеплителя, уложенного в стойках каркаса). Стойки каркаса также расположены с шагом 300 мм. Стены обшиваются паро-гидроизоляционными пленками с применением технологии вентилируемого фасада
- Непродуваемая и очень мощная конструкция каркаса поможет вам существенно сэкономить при отоплении дома, а также продлить срок эксплуатации дома на долгие годы.
Толщина пирога кровли – 220 мм, утепление (150 мм) плитным утеплителем. Покрытие кровли – металл черепица. Производитель Grand Line. Усиленная стропильная система из калиброванных балок – 200х50 мм. Шаг балок в каждом проекте рассчитывается индивидуально, в зависимости от длины ската кровли, уклона кровли, а также с учетом снеговых нагрузок.
Стеклопакет 2-х камерный, 3 стекла. Качественная фурнитура. Отливы на окнах.

Имитация бруса класса АВ. Ширина 135 мм. собственного производства с гарантией качества материала. Сайдинг, цвет на выбор.

Чистовая отделка внутренних стен в стиле деревянного дома имитацией бруса класса АВ, материалы собственного производства с гарантией качества.

Во внутренние перегородки заложена шумоизоляция, перегородки обшиты паро-гидроизоляционными пленками. Посетив наш офис, вы сможете увидеть качество материала, проконсультироваться со специалистами и сделать правильный выбор.
Все террасы и балконы входят в комплектацию и включены в стоимость дома.
Пол первого этажа.
Калиброванные балки – 200х50 мм. При больших пролетах применяются балки 100х200 мм или LVL балки. Шаг балок от 25 до 59 см зависит от размера комнат, определенный интервал делается для того, чтобы половые лаги не прогибались и не шатались при ходьбе. Расчет производится по нагрузкам 345 кг на кв. м пола, что в разы превышает допустимую по СНиПу нагрузку. Толщина перекрытий – 243 мм, утепление плитным утеплителем – 200 мм. Утепление происходит по технологии «Аляска» – перекрестное утепление пола, исключающее появление мостиков холода в полу и продуваний извне. В полах предусмотрен слой для инженерных коммуникаций, позволяющий не портить конструкцию половых лаг при проводке коммуникаций. Покрытие пола – усиленные плиты ОСП толщиной 18 мм, являющиеся основой под ламинат, паркет, половую или шпунтованную доску, а также любое чистовое покрытие пола.
Пол второго этажа.
Калиброванные балки – 150х50 мм, при больших пролетах применяются балки 200х50 мм,100х200 мм или LVL балки. Шумоизоляция пола. Шаг балок от 25 до 59 см зависит от размера комнат, определенный интервал делается для того, чтобы половые лаги не прогибались и не шатались при ходьбе. Расчет производится по нагрузкам 345 кг на кв. м пола, что в разы превышает допустимую по СНиПу нагрузку. Толщина перекрытий – 205 мм. В полах предусмотрен слой для инженерных коммуникаций, позволяющий не портить конструкцию половых лаг при проводке коммуникаций. Покрытие пола – усиленные плиты ОСП толщиной 18 мм, являющиеся основой под ламинат, паркет, половую или шпунтованную доску, а также любое чистовое покрытие пола.
Электромонтажные работы электросетях 220/380 В и слаботочные сети (интернет, ТВ и видеонаблюдение).
Все электромонтажные работы выполняются по проекту электроснабжения на основании сделанного для вас дизайн проекта с планом расстановки мебели. Монтаж силовых и слаботочных линий скрытым способом в металлорукаве. Более подробную информацию Вы можете получить у консультантов компании.
Дополнительно:
- Сборка и подключение электрощита 220/380 В и мультимедийного щита.
- Установка розеток, выключателей и светильников.
- Подключение дома к линиям электропередач.
- Монтаж контура заземления.
- Монтаж с подключением дополнительных групп для конверторного отопления.
По проекту, прокладка труб отопления прокладывается скрыто в утеплителе и открытым способом для радиаторов и водяных теплых полов.
Более подробную информацию Вы можете получить у консультантов компании.
Дополнительно:
- Установка с подключением коллекторного шкафа к системе отопления.
- Монтаж водяных теплых полов по системе «сухой стяжки».
- Опрессовка труб отопления.
- Монтаж с подключением радиаторов.
Работы по проводке водоснабжения и канализации выполняются по проекту.
Более подробную информацию Вы можете получить у консультантов компании.
- Прокладка труб водоснабжения скрыто в утеплителе и открытым способом для потребителей.
- Установка с подключением коллекторного шкафа к системе водоснабжения.
- Опрессовка труб водоснабжения.
- Монтаж с подключением водорозеток.
- Сборка и установка оборудования для системы водоснабжения.
- Монтаж с подключением водонагревательного накопительного бака или проточного водонагревателя.
- Монтаж закладных труб для канализации в перекрытии.
- Монтаж системы канализации внутри дома с выводом для подключения к очистной станции.
- Монтаж вентиляции для канализационной системы.
- Гарантия на каркас 20 лет!
- Эскизный проект, необходимый для получения разрешения на строительство
- Технический надзор
- Погрузочно-разгрузочные работы
- Уборка мусора после окончания строительных работ
- Дополнительные скидки при последующих заказах
- Позвоните и запишитесь на встречу, а также получите бесплатную консультацию: +7 (495) 921-921-1; +7 (495) 921-921-2!
- Визуализация рисунка дома, показанного на сайте, может незначительно отличаться от базовой комплектации данного проекта.
- Общая площадь дома дана из расчета площади застройки строения.
Предложение не является публичной офертой.
Винтовые сваи. Толщина стенки сваи – 4 мм, толщина лопасти – 5 мм. Сваи бетонируются внутрь пескоцементной смесью М300. Наваривается металлический оголовок, по которому делается и крепится обвяз. Свая покрыта двухкомпонентным заводским защитным составом. Длина сваи составляет 2,5м.
Сечение сваи 150х150 мм. Ж/Б сваи вбиваются специализированной техникой на глубину промерзания не менее 1800 мм. Сверху покрывается металлический оголовок, по которому делается обвязка фундамента. Длина сваи - 3 метра.
- Высота стен первого этажа – 2,7 м, второго этажа - 2,5 м.
- Антисептирование всех деревянных элементов каркаса.
- Каркас возводится по лицензированной современной технологии. Конструктив данного каркаса является последним инновационным достижением в каркасном домостроении. Толщина стен доходит до 250 мм (в зависимости от отделки). Утепление стен – 200 мм (четыре слоя плитного утеплителя, уложенного в стойках каркаса). Стойки каркаса расположены с шагом 300 мм, что дает дополнительную прочность конструкции. Стены обшиваются паро-гидроизоляционными пленками с применением технологии вентилируемого фасада.
- Контроль строительства – бесплатная услуга технадзора.
- Гарантия на каркас 20 лет!
- Возможна замена материалов и внесение изменений в проект.
- Высота первого этажа – 2,7 м., второго этажа - 2,5 м.
- Каркас возводится по уникальной технологии разработанной компанией LPS-DOM. Конструктив данного каркаса является последним инновационным достижением в каркасном домостроении. Толщина стен доходит до 250 мм (в зависимости от отделки). Утепление стен – 200 мм (четыре слоя плитного утеплителя, уложенного в стойках каркаса). Стойки каркаса расположены с шагом 300 мм, что дает дополнительную прочность конструкции Стены обшиваются паро-гидроизоляционными пленками с применением технологии вентилируемого фасада.
- Непродуваемая и очень мощная конструкция каркаса поможет вам существенно сэкономить при отоплении дома, а также продлить срок эксплуатации дома на долгие годы.
Толщина пирога кровли – 220 мм, утепление (150 мм) плитным утеплителем. Покрытие кровли – металл черепица. Производитель Grand Line. Усиленная стропильная система из калиброванных балок – 150х50 мм. Шаг балок в каждом проекте рассчитывается индивидуально, в зависимости от длины ската кровли, уклона кровли, а также с учетом снеговых нагрузок.
Стеклопакет 2-х камерный, 3 стекла. Качественная фурнитура. Отливы на окнах. Наличники деревянные.

Имитация бруса класса АВ. Ширина 135 мм. собственного производства с гарантией качества материала. Сайдинг, цвет на выбор.
Чистовая отделка внутренних стен в стиле деревянного дома выполняется имитацией бруса класса АВ. Во внутренние перегородки заложена шумоизоляция, перегородки обшиты паро-гидроизоляционными пленками.
Посетив наш офис, вы сможете увидеть качество материала, проконсультироваться со специалистами и сделать правильный выбор.
Все террасы и балконы входят в комплектацию и включены в стоимость дома.
- Пол первого этажа. Калиброванные балки – 150 х50 мм. Шаг балок от 25 до 59 см зависит от размера комнат, определенный интервал делается для того, чтобы половые лаги не прогибались и не шатались при ходьбе. Расчет производится по нагрузкам 345 кг на кв. м пола, что в разы превышает допустимую по СНиПу нагрузку. Толщина перекрытий – 190 мм, утепление плитным утеплителем – 200 мм. Утепление происходит по технологии «Аляска» – перекрестное утепление пола, исключающее появление мостиков холода в полу и продуваний извне. В полах предусмотрен слой для инженерных коммуникаций, позволяющий не портить конструкцию половых лаг при проводке коммуникаций. Покрытие пола – усиленные плиты ОСП толщиной 18 мм, являющиеся основой под ламинат, паркет, половую или шпунтованную доску, а также любое чистовое покрытие пола.
- Пол второго этажа. Калиброванные балки – 150х50 мм. Покрытие пола – усиленные плиты ОСП толщиной 18 мм, являющиеся основой под ламинат, паркет, половую или шпунтованную доску, а также любое чистовое покрытие пола. Толщина перекрытий – 190 мм.
Электромонтажные работы электросетях 220/380 В и слаботочные сети (интернет, ТВ и видеонаблюдение).
Все электромонтажные работы выполняются по проекту электроснабжения на основании сделанного для вас дизайн проекта с планом расстановки мебели. Монтаж силовых и слаботочных линий скрытым способом в металлорукаве. Более подробную информацию Вы можете получить у консультантов компании.
Дополнительно:
- Сборка и подключение электрощита 220/380 В и мультимедийного щита.
- Установка розеток, выключателей и светильников.
- Подключение дома к линиям электропередач.
- Монтаж контура заземления.
- Монтаж с подключением дополнительных групп для конверторного отопления.
По проекту, прокладка труб отопления прокладывается скрыто в утеплителе и открытым способом для радиаторов и водяных теплых полов.
Более подробную информацию Вы можете получить у консультантов компании.
Дополнительно:
- Установка с подключением коллекторного шкафа к системе отопления.
- Монтаж водяных теплых полов по системе «сухой стяжки».
- Опрессовка труб отопления.
- Монтаж с подключением радиаторов.

Более подробную информацию Вы можете получить у консультантов компании.
- Прокладка труб водоснабжения скрыто в утеплителе и открытым способом для потребителей.
- Установка с подключением коллекторного шкафа к системе водоснабжения.
- Опрессовка труб водоснабжения.
- Монтаж с подключением водорозеток.
- Сборка и установка оборудования для системы водоснабжения.
- Монтаж с подключением водонагревательного накопительного бака или проточного водонагревателя.
- Монтаж закладных труб для канализации в перекрытии.
- Монтаж системы канализации внутри дома с выводом для подключения к очистной станции.
- Монтаж вентиляции для канализационной системы.
- Гарантия на каркас 20 лет!
- Эскизный проект, необходимый для получения разрешения на строительство
- Технический надзор
- Погрузочно-разгрузочные работы
- Уборка мусора после окончания строительных работ
- Дополнительные скидки при последующих заказах
- Позвоните и запишитесь на встречу, а также получите бесплатную консультацию: +7 (495) 921-921-1; +7 (495) 921-921-2!
- Визуализация рисунка дома, показанного на сайте, может незначительно отличаться от базовой комплектации данного проекта.
- Общая площадь дома дана из расчета площади застройки строения.
- Предложение не является публичной офертой.
Винтовые сваи. Толщина стенки сваи – 4 мм, толщина лопасти – 5 мм. Сваи бетонируются внутрь пескоцементной смесью М300. Наваривается металлический оголовок, по которому делается и крепится обвяз. Свая покрыта двухкомпонентным заводским защитным составом. Длина сваи составляет 2,5м.
Сечение сваи 150х150 мм. Ж/Б сваи вбиваются специализированной техникой на глубину промерзания не менее 1800 мм. Сверху покрывается металлический оголовок, по которому делается обвязка фундамента. Длина сваи - 3 метра.
LPS-DOM